大須
リード上前津Ⅱ 2階
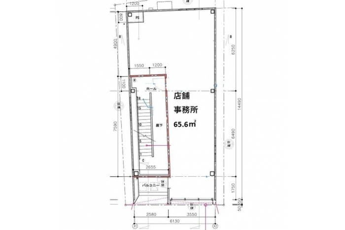
![]()
- 
					
					
				 - 「上前津」駅徒歩1分
大須通沿いで視認性◎ 新築の駅近物件です!
 
物件情報
| 物件No. | 15660 | 
|---|---|
| 賃料 | 398,574円 | 
| 共益費 | 11,000円 | 
| 面積 | 20.13坪 / 66.55㎡ | 
| 階数 | 2階 | 
| 保証金 | 3ヶ月 | 
| 償却・敷引金 | - | 
| 造作代金・ 権利金  | 
						- | 
| 諸費用 | ・保証会社加入要 ・保険加入要 ・更新事務手数料 更新時 33,000円(税込) 2年毎 ・外国人コール24 月額 1,100円(税込) 外国籍入居可能物件のみ対象 | 
| 所在地 | 名古屋市中区大須四丁目1522-1(地番) | 
| 交通 | 名城線/上前津駅 徒歩1分 | 
Photo galleryフォトギャラリー
内覧ご希望の方はお気軽にご連絡下さい!
ただいま準備中です
Pickup Point !
日建がおすすめするポイント !
「上前津」駅徒歩1分
大須通沿いで視認性◎ 新築の駅近物件です!
					
				location物件位置情報
Otherその他の情報
その他賃貸条件・建物・備考
| 構造 | 鉄骨造(S) / 地上3階建 | 
|---|---|
| 駐車場 | - | 
| 築年数 | 2025年9月 | 
| 現状 | 建築中 | 
| 不可業種 | 飲食 相談 | 
| 引渡し日 | 相談 | 
| 引渡し状態 | スケルトン | 
| 設備・ 条件その他  | 
						・トイレなし、ガスなし ・短期解約違約金有り 1年未満:賃料1か月分  | 
					
| 取引形態 | 媒介 | 
					※契約の締結時には仲介手数料として賃料1ヶ月分を申し受けます。
					※賃貸条件の詳細は重要事項説明書をもってご説明いたします。
					※既決の際はご容赦ください。
				



					
					
					
					