名古屋駅
松岡第2ビル 4階2号室 【担当:土居】
![]()
-
- 名古屋駅すぐ、駅近のテナントビルです!
美容サロン・事務所にオススメです!
担当:土居
物件情報
| 物件No. | 16054 |
|---|---|
| 賃料 | 176,000円 |
| 共益費 | 27,500円 |
| 面積 | 12.52坪 / 41.39㎡ |
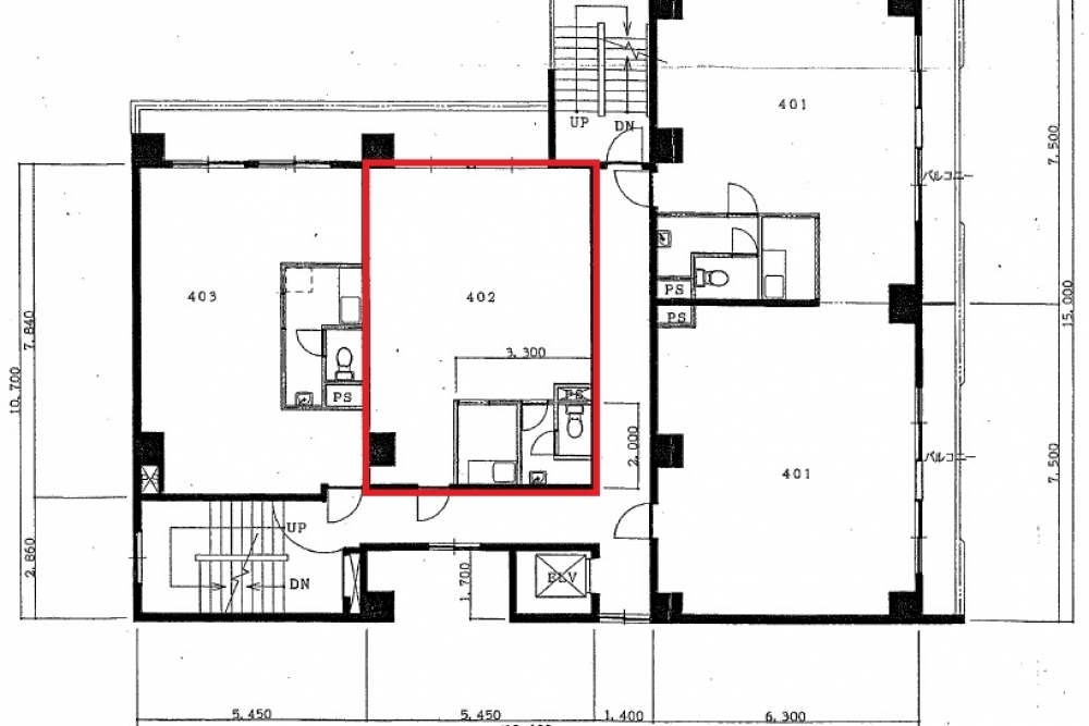
| 階数 | 4階2号室 |
| 保証金 | 3,500,000円 |
| 償却・敷引金 | 30% |
| 造作代金・ 権利金 |
- |
| 諸費用 | ・保証会社必須 ・火災保険要加入 ・預り金1,900,000円(店舗使用の場合) ・電灯、冷暖房(動力)共月額基本料金11,704円及び使用料 ・袖看板代:11,000円(任意) |
| 所在地 | 名古屋市中村区名駅二丁目36番10号 |
| 交通 | 東山線/名古屋駅 徒歩1分 |
Pickup Point !
日建がおすすめするポイント !
名古屋駅すぐ、駅近のテナントビルです!
美容サロン・事務所にオススメです!
担当:土居
16054#ネイルサロン#美容サロン#事務所#物販#まつエク#名古屋市#中村区#名駅#東山線#桜通線#JR#名鉄#駅近#徒歩1分#空き店舗#空きテナント
location物件位置情報
Otherその他の情報
その他賃貸条件・建物・備考
| 構造 | 鉄骨鉄筋コンクリート造(SRC) / 地上7階建 |
|---|---|
| 駐車場 | - |
| 築年数 | 1977年11月 |
| 現状 | 使用中(2026年4月末まで) |
| 不可業種 | 飲食 |
| 引渡し日 | 2026年5月以降 |
| 引渡し状態 | 事務所内装 |
| 設備・ 条件その他 |
・事務所利用の場合、賃料条件が変更となります。 ・賃料171,600円 共益費26,400円 保証金1,560,000円 ・24時間出入り可能 ・エレベーター |
| 取引形態 | 媒介 |
※契約の締結時には仲介手数料として賃料1ヶ月分を申し受けます。
※賃貸条件の詳細は重要事項説明書をもってご説明いたします。
※既決の際はご容赦ください。



