千種区
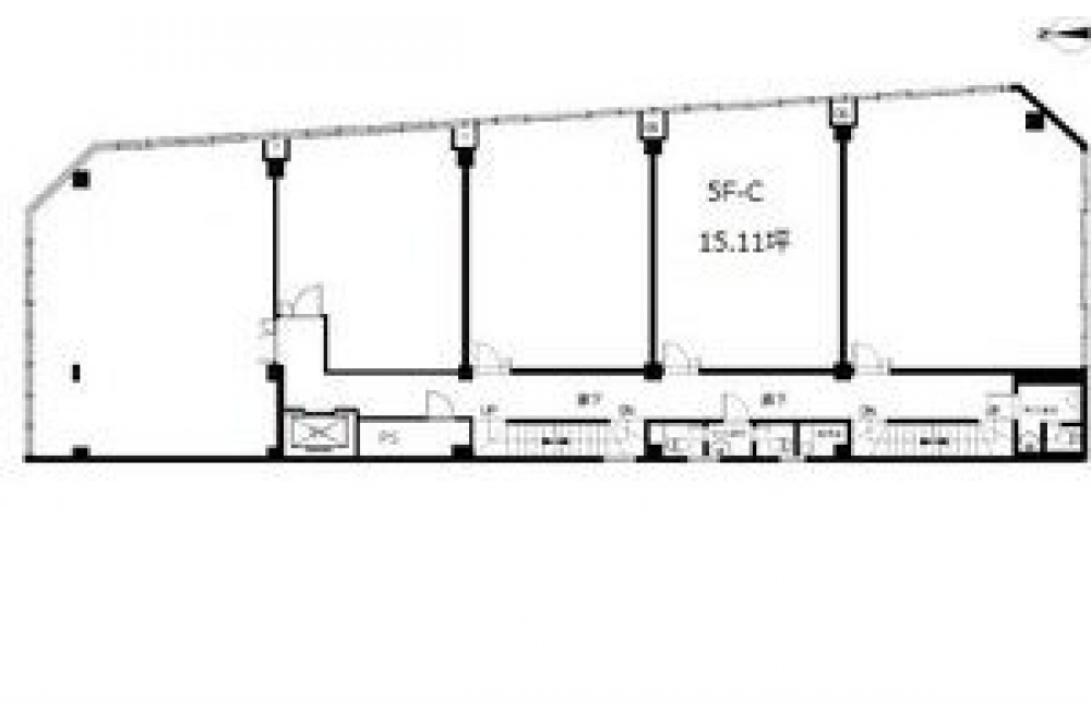
今池センタービル 5階C号室
![]()
-
- 広小路通沿いの人気物件です!
事務所だけでなく、サービス店舗にもおすすめです!
物件情報
| 物件No. | 16190 |
|---|---|
| 賃料 | 166,210円 |
| 共益費 | - |
| 面積 | 15.11坪 / 49.95㎡ |
| 階数 | 5階C号室 |
| 敷金 | 6ヶ月 |
| 償却・敷引金 | - |
| 造作代金・ 権利金 |
- |
| 諸費用 | ・保証会社加入要 ・保険加入要 ・ゴミ処理代550円/坪(月額) ・警備料2,200円/月 |
| 所在地 | 名古屋市千種区今池五丁目2番6号 |
| 交通 | 東山線/今池駅 徒歩2分 |
Pickup Point !
日建がおすすめするポイント !
広小路通沿いの人気物件です!
事務所だけでなく、サービス店舗にもおすすめです!
location物件位置情報
Otherその他の情報
その他賃貸条件・建物・備考
| 構造 | 鉄筋コンクリート造(RC) / 地下1階付8階建 |
|---|---|
| 駐車場 | - |
| 築年数 | 1961年12月 |
| 現状 | 空き |
| 不可業種 | 相談 |
| 引渡し日 | 相談 |
| 引渡し状態 | 現状渡し |
| 設備・ 条件その他 |
・普通賃貸借契約 2年 |
| 取引形態 | 媒介 |
※契約の締結時には仲介手数料として賃料1ヶ月分を申し受けます。
※賃貸条件の詳細は重要事項説明書をもってご説明いたします。
※既決の際はご容赦ください。



