東区
東区泉2丁目メディカルビル3階【担当:堀】
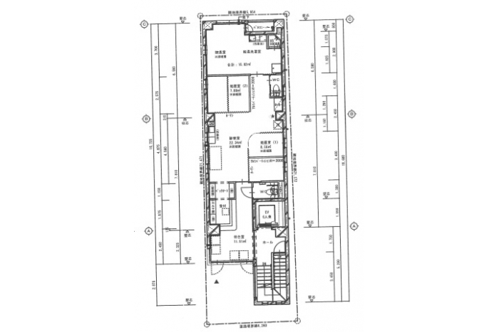
- POINT
- 駅徒歩2分のクリニック居抜き物件です!
美容系、ジム等にオススメ!
担当:堀
物件情報
物件No.
16295
賃料
346,907円
共益費
6,600円
面積
28.67坪 / 94.78m²
階数
3階
保証金
6ヶ月
償却・敷引金
2年未満:100% 2年以降:30%
造作代金・権利金
-
諸費用
・保証会社利用必須 ・保険要加入
所在地
名古屋市東区泉二丁目23番25号
交通
桜通線/高岳駅 徒歩2分
キーワード
16295#美容サロン#クリニック#事務所#居抜き#東区#高岳#桜通線#駅近#徒歩5分#物件#貸店舗#貸テナント#愛知県#名古屋市#空き店舗#空店舗#募集テナント
物件位置情報
その他賃貸条件・建物・備考
構造
鉄筋コンクリート造(RC) / 地上4階建
築年数
2010年12月
現状
空室
不可業種
飲食 相談
引渡し状態
現状渡し(クリニック)
引渡し日
相談
設備・条件その他
・定期賃貸借契約:10年(期間は相談可 ※普通借でもOK)
・エレベーター トイレ
駐車場
-
取引形態
媒介
※契約の締結時には仲介手数料として賃料1ヶ月分を申し受けます。
※賃貸条件の詳細は重要事項説明書をもってご説明いたします。
※既決の際はご容赦ください。
この物件が気になったら、
お気軽にご相談下さい。
