その他
エクセランス内藤1階【担当:長】
- POINT
- 駐車場付き1階路面店!業種ご相談ください!
担当:長
物件情報
物件No.
16303
賃料
176,000円
共益費
-
面積
20.94坪 / 69.22m²
階数
1階
保証金
480,000円(3ヶ月)
償却・敷引金
100%(税込)
造作代金・権利金
諸費用
・保証会社加入要 ・火災保険加入要
所在地
愛知県稲沢市高御堂一丁目1番12号
交通
名鉄本線「国府宮」駅 徒歩2分
キーワード
16303#飲食#物販#美容サロン#事務所#1階#稲沢市#国府宮#名鉄#駅近#物件#貸店舗#貸テナント#愛知県#稲沢市#空き店舗#空店舗#募集テナント
物件位置情報
その他賃貸条件・建物・備考
構造
鉄骨造(S) / 地上4階
築年数
1993年3月
現状
使用中 2026年4月末退去予定
不可業種
相談
引渡し状態
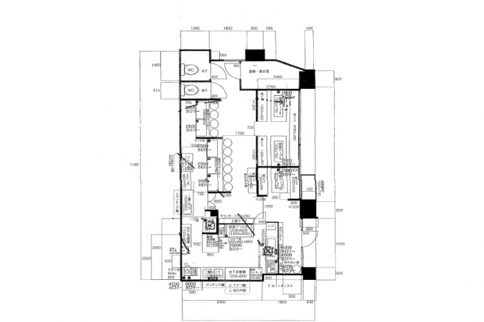
現状渡し(飲食店)orスケルトン
引渡し日
相談
設備・条件その他
駐車場
有 敷地内駐車場(店舗北側)1台 11,000円/月
取引形態
媒介
※契約の締結時には仲介手数料として賃料1ヶ月分を申し受けます。
※賃貸条件の詳細は重要事項説明書をもってご説明いたします。
※既決の際はご容赦ください。
この物件が気になったら、
お気軽にご相談下さい。
