大須
TC-BUILDING 一棟
- POINT
- 大須エリア1棟貸の物件です!
物件情報
物件No.
16472
賃料
726,000円
共益費
-
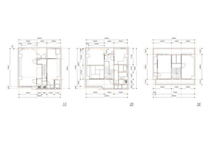
面積
42.95坪 / 141.98m²
階数
一棟
保証金
4ヶ月
償却・敷引金
50%
造作代金・権利金
-
諸費用
・保証会社加入 ・保険要加入
・24時間緊急サービス 1,980円
所在地
名古屋市中区大須二丁目31番4号
交通
鶴舞線/大須観音駅 徒歩5分
キーワード
#大須#大須観音#名城線#鶴舞線#上前津#徒歩5分#一棟貸#住居#民泊#シェアハウス#観光客の多い大須商店街近く#物件#貸店舗#貸テナント#愛知県#名古屋市#空き店舗#空店舗#募集テナント
物件位置情報
その他賃貸条件・建物・備考
構造
鉄筋コンクリート造(RC) / 地上3階
築年数
1984年
現状
空き
不可業種
飲食
引渡し状態
現状渡し
引渡し日
即可
設備・条件その他
・短期解約違約金:1年未満賃料の3か月、1年以上2年未満賃料の2か月分
・ 6LDK以上+S バルコニー面積:18m2
駐車場
-
取引形態
媒介
※契約の締結時には仲介手数料として賃料1ヶ月分を申し受けます。
※賃貸条件の詳細は重要事項説明書をもってご説明いたします。
※既決の際はご容赦ください。
この物件が気になったら、
お気軽にご相談下さい。
