大須
上前津エフワンビル 1階
- POINT
- 「上前津」駅徒歩4分!1階の事務所物件です!
駅近の事務所向け空物件です!
ショールームやオフィスにおすすめ!
物件情報
物件No.
16532
賃料
409,750円
共益費
-
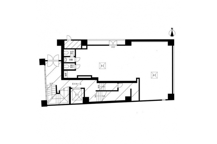
面積
29.79坪 / 98.48m²
階数
1階
保証金
3,000,000円
償却・敷引金
-
造作代金・権利金
-
諸費用
・保証会社(全保連) ・保険要加入
・電気基本料 11,763円/月 ※変動有
所在地
名古屋市中区上前津二丁目12番1号
交通
名城線/上前津駅 徒歩4分
キーワード
#上前津#名城線#鶴舞線#駅近#美容サロン#事務所#オフィス#徒歩5分#駅近#物件#貸店舗#貸テナント#愛知県#名古屋市#空き店舗#空店舗#募集テナント
物件位置情報
その他賃貸条件・建物・備考
構造
鉄筋コンクリート造(RC) / 地上5階
築年数
1991年10月
現状
使用中
不可業種
飲食
引渡し状態
事務所内装
引渡し日
2026年8月上旬
設備・条件その他
・定期建物賃貸借契約:5年
・事務所仕様(OAフロア:100mm、天井高:2600mm、トイレ:男女別)
駐車場
-
取引形態
媒介
※契約の締結時には仲介手数料として賃料1ヶ月分を申し受けます。
※賃貸条件の詳細は重要事項説明書をもってご説明いたします。
※既決の際はご容赦ください。
この物件が気になったら、
お気軽にご相談下さい。
