その他
ファイブヒルズ 1階 【担当:土居】
- POINT
- 名東本通沿いの1階です!
駐車場3台空き有ります!
物件情報
物件No.
15438
賃料
132,000円
共益費
3,300円
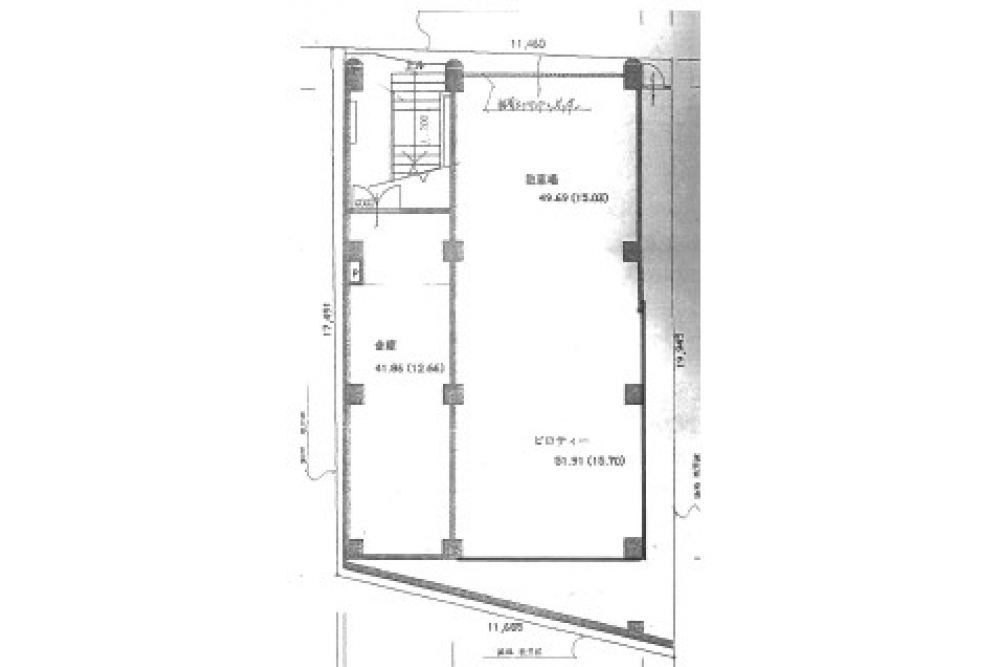
面積
12.66坪 / 41.85m²
階数
1階101
保証金
360,000円
償却・敷引金
-
造作代金・権利金
-
諸費用
・保証会社(イントラスト) ・償却保証金 198,000円
所在地
名古屋市名東区名東本通五丁目43番地
交通
東山線/星ケ丘駅 駅徒歩20分
キーワード
物件位置情報
その他賃貸条件・建物・備考
構造
鉄筋コンクリート造(RC) / 地上5階建
築年数
1988年7月
現状
空き
不可業種
飲食
引渡し状態
現状渡し
引渡し日
即可
設備・条件その他
駐車場
3台空きあり
取引形態
媒介
※契約の締結時には仲介手数料として賃料1ヶ月分を申し受けます。
※賃貸条件の詳細は重要事項説明書をもってご説明いたします。
※既決の際はご容赦ください。
この物件が気になったら、
お気軽にご相談下さい。
