栄
ル・パルクMK 5階
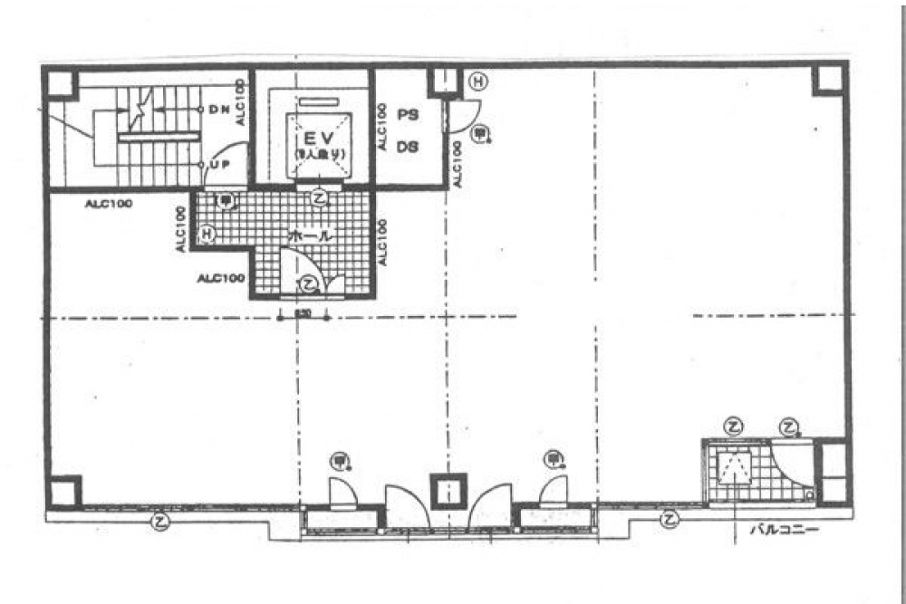
![]()
-
- 栄3丁目の居酒屋居抜き物件です!
物件情報
| 物件No. | 16188 |
|---|---|
| 賃料 | 598,774円 |
| 共益費 | 賃料に含む |
| 面積 | 32.02坪 / 105.85㎡ |
| 階数 | 5階 |
| 保証金 | 10ヶ月 |
| 償却・敷引金 | 33% |
| 造作代金・ 権利金 |
- |
| 諸費用 | ・保証会社加入(フォーシーズ) ・火災保険加入 ・看板掲載料:11,000円/月 ・廃棄物処理費:19,800円/月 |
| 所在地 | 名古屋市中区栄三丁目9番20号 |
| 交通 | 東山線/栄駅 徒歩4分 |
Pickup Point !
日建がおすすめするポイント !
栄3丁目の居酒屋居抜き物件です!
#居抜き#居酒屋#イタリアン#バル#洋食#和食#ダイニングカフェ#造作譲渡#譲渡金なし#スケルトン要相談#飲食#繁華街#栄#矢場町#東山線#名城線#徒歩5分
location物件位置情報
Otherその他の情報
その他賃貸条件・建物・備考
| 構造 | 鉄骨造(S) / 地下1階付5階建 |
|---|---|
| 駐車場 | - |
| 築年数 | 2001年7月 |
| 現状 | 空き |
| 不可業種 | 重飲食 重複不可 |
| 引渡し日 | 即可 |
| 引渡し状態 | 現状渡し(居酒屋) |
| 設備・ 条件その他 |
※面積には、5階EV前区画を含みます。 ※スケルトン渡し希望の場合、応相談可 ※重複業種:ラーメン・寿司・鍋料理・美容室・シーシャバー ・定期賃貸借契約 8年 |
| 取引形態 | 媒介 |
※契約の締結時には仲介手数料として賃料1ヶ月分を申し受けます。
※賃貸条件の詳細は重要事項説明書をもってご説明いたします。
※既決の際はご容赦ください。



