千種区
(仮称)couleurs motoyama 3階南号室 【担当:長】
- POINT
- オシャレな外観の新築ビル!
物件情報
物件No.
16250
賃料
237,930円
共益費
11,000円
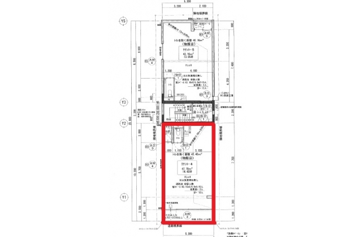
面積
14.42坪 / 47.67m²
階数
3階南号室
保証金
6ヶ月
償却・敷引金
50%
造作代金・権利金
-
諸費用
・保証会社加入要 ・火災保険加入要
所在地
名古屋市千種区猫洞通五丁目12番地(地番)
交通
東山線/本山駅 徒歩2分
キーワード
#物件#貸店舗#貸テナント#愛知県#名古屋市#空き店舗#空店舗#募集テナント
物件位置情報
その他賃貸条件・建物・備考
構造
鉄筋コンクリート造(RC) / 地上3階建
築年数
2026年5月
現状
建築中 2026年5月末頃竣工予定
不可業種
重飲食
引渡し状態
現状渡し(事務所内装)
引渡し日
相談
設備・条件その他
定期賃貸借契約:10年
駐車場
-
取引形態
媒介
※契約の締結時には仲介手数料として賃料1ヶ月分を申し受けます。
※賃貸条件の詳細は重要事項説明書をもってご説明いたします。
※既決の際はご容赦ください。
この物件が気になったら、
お気軽にご相談下さい。
