【B-15925】 【美容系・事務所】 東勝ビル 2階
2025.10.15居抜き物件特集

\ 「矢場町」駅から徒歩圏内! 「女子大」エリアの美容室居抜き物件です! /
今回は【中区・名城線沿線】の物件紹介です!
場所は地下鉄「矢場町」駅1番出入口から徒歩7分、
久屋大通から少し中へ入った場所に位置します。
飲食店が集まる「女子大」エリアの南側で、
マンションが多く比較的閑静な区画です。
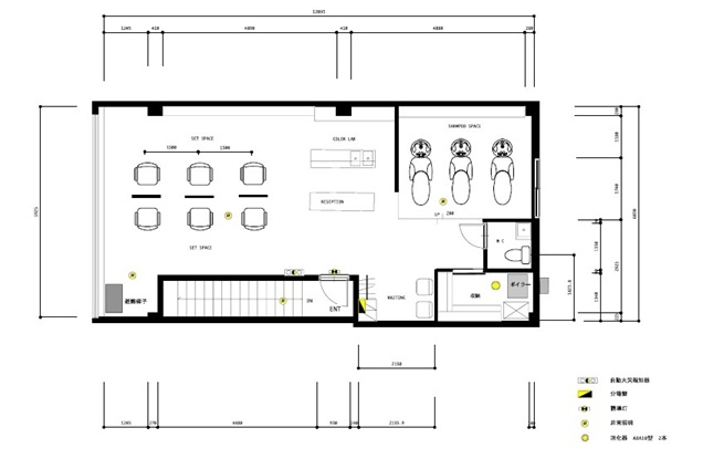
【募集区画】は2階:24.96坪(82.5㎡)、
美容室の居抜き物件で綺麗な内装です。
業種は美容系の他、事務所にご利用いただけます☝
栄・女子大エリアの駅近物件です!
是非ご検討下さい!
<アクセス>
名城線「矢場町」駅:1番出入口から徒歩7分
詳細、ご質問等ありましたらお気軽にご連絡ください。
その際【 B15925】とお伝えください。
【物件概要】物件の詳細はこちら
─・・─・・─・・─・・─・・─・・─・・─・・─・・─・・─・・─・・─・・─・・
階 数 2階
所在地 名古屋市中区栄五丁目4番24号
面 積 24.96坪(82.5㎡)
賃 料 330,000円(税込)
共益費 -
保証金 6ヶ月
償 却 5年未満:100% 5年以上8年未満:80%
8年以上:30%
造作代金 4,400,000円
諸費用 ・保証会社必須 ・火災保険要加入 ・造作手数料:5%
駐車場 -
その他
─・・─・・─・・─・・─・・─・・─・・─・・─・・─・・─・・─・・─・・─・・
↑ 内装写真(3枚):
↑ 設備+トイレ
↑ 建物周辺:久屋大通方面
#物件#貸店舗#貸テナント#店舗物件#愛知県#名古屋市#空き店舗#空店舗#募集テナント#中区#矢場町#名城線#女子大#栄#美容サロン#事務所#居抜き