Blog日建ブログ
【B-16188】【軽飲食・美容系・事務所】 ル・パルクMK 5階
2026.02.03居抜き物件特集
【中区/東山線・名城線/栄エリア】駅徒歩圏内の好立地、希少な居抜き店舗のご紹介です!
名古屋を代表する繁華街「栄」エリア、その中心に位置する 栄三丁目 は中でも、
人の流れ・商業密度・話題性が特に高いエリアで、店舗ビジネスに理想的な立地条件が揃っています。
三越・ラシック・オアシス21など大型商業施設が集まり、平日・休日を問わず買い物客・観光客・ビジネス層など多様な人々が訪れます。
昼夜で異なる客層が流入するため、飲食・物販・サービスなど幅広い業態に対応できる点も魅力です。
地下鉄「栄」駅からのアクセスが良く、地下街とのつながりも強いため、天候に左右されにくい安定した集客が期待できます。
さらに久屋大通公園のリニューアルにより、都会的な雰囲気と開放感が共存する魅力的な街並みへと進化し、特にカフェや飲食店との相性が高まっています。
栄三丁目は、安定した人流、高い集客力、多様な客層、そして話題性のある立地として、店舗ビジネスに大きなポテンシャルを持つエリアです。
物件の特徴:高い集客力を誇る多用途対応なテナントビル
本物件「ル・パルクMK」は、栄エリアの中心、三蔵通沿いに位置するテナントビルです。
プリンセス大通りにも近く、周辺にはナディアパークや三越、ラシックなどの大型商業施設が集まるため、終日多くの人でにぎわいます。
飲食店やサービス店舗が立ち並ぶエリアのため、相乗効果も期待できます。
現在は、飲食店(ラーメン・寿司・鍋用炉)、シーシャバー、美容室が入居中です。
設備面では24時間利用可能、エレベーター完備、光ファイバー対応、個別空調など、快適で柔軟な運営を支える環境が整っています。
栄の中心でビジネスを展開したい方にとって、非常に魅力的なテナントビルです。

物件概要
所在地 名古屋市中区栄三丁目9番20号
階 数 5階
面 積 32.02坪(105.86㎡)
賃 料 598,774円(税込)
共益費 賃料に含む
保証金 10ヶ月
償 却 33%
ポイント:ワンフロアの居酒屋居抜き物件! 初期費用を抑えて開業したい飲食業の方にオススメ!
・飲食店舗(軽飲食、カフェ・居酒屋等)
⇒ワンフロアで使いやすいレイアウトの居抜き物件です。
内装アレンジで理想の世界観を表現してください☺
初期費用を抑えてスピーディーに開業したい方にぴったり
・美容系店舗(例:エステ・サロン)
⇒大きい窓面を生かした明るい店舗づくりにおすすめです!
施術スペースや受付のレイアウトを自由にアレンジ
ワンフロアなので静かでリラックスできる雰囲気を演出しやすい点も魅力
・スクール、事務所
⇒ワンフロアで見通しが良く、少人数制のスクールや教室にも活用できます
レイアウトの自由度が高く、机・椅子の配置や備品の導入もスムーズに
受付カウンターの設置場所によりいろいろなレイアウトが浮かびます
ぜひ、内覧して理想の形をイメージしてみませんか?
■募集業種・業態
・ 飲食:カフェ、喫茶店等の軽飲食、居酒屋
・ サービス店舗:美容系(脱毛・エステサロン)、クリニック、ピラティス・ヨガ等
・ 事務所、スクール
※ 現在入居中の業種重複は不可です(ラーメン、寿司、鍋料理、シーシャバー、美容室)
アクセス
■東山線「栄」駅:16番出入口から徒歩8分
■サカエチカ8番出入口から徒歩5分
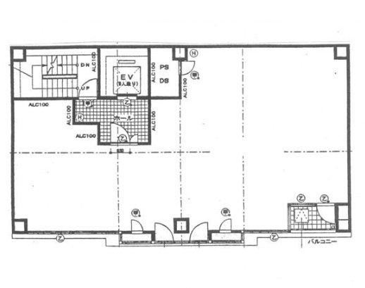
間取図・内装写真・建物周辺
間取図

内装・厨房写真等







建物周辺

↑ 目の前の交差点がプリンセス大通りで、飲食店が多い繁華街エリアです☝
お問合せはこちら
ご質問、案内予約等ありましたらお気軽にご連絡ください。
その際【B16188】とお伝えください。
電 話:052-228-6770(9時~18時 定休日:土日祝日)
LINE:nikken公式アカウント(24時間受付)
メール:ル・パルクMK(24時間受付)
※LINE・メールでのお問合せの場合、営業時間外は受付のみとなっております