Blog日建ブログ
【B-16192】【美容サロン・事務所】amiami annex 5階C
2026.01.29居抜き物件特集
【名東区/東山線/藤が丘エリア】駅徒歩5分圏内の好立地、多業種が入居するテナントビルをご紹介!
「藤が丘」エリアは、名古屋市名東区の東端にある人気の住宅街で、
アクセス・住環境・治安の良さがそろったバランスの良い地域です。
・ 地下鉄東山線やバス、リニモが使え、名古屋中心部や長久手方面へ移動しやすい
・ 駅周辺は賑やかで飲食店が多く、少し離れると静かな住宅街が広がる
・ 生活施設が充実し、治安も良く、子育て世代やファミリーに人気
・ 家賃は都心より抑えめで、利便性と落ち着きを両立できるコスパの高い街
アクセス性・暮らしやすさ・安心感がそろった、理想的なエリアとして支持されています。
物件の特徴:駅近×多彩なテナント×幅広い年齢層が利用
本物件「amiami annex」は、
「藤が丘駅」(東山線・リニモ:東部丘陵線)から徒歩5分圏内という便利な立地。
・多彩なテナントが集う活気あるビル
・館内にはフィットネスクラブ、学習塾、法律事務所等が入居中で、
幅広い利用者層に対応した環境
・個別空調を完備し、エレベーターも2基設置、
快適で利便性の高い施設

物件概要
所在地 名古屋市名東区明が丘124番地2号
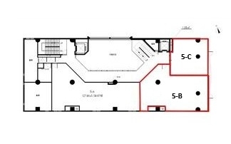
階 数 5階C号室
面 積 13.16坪(43.53㎡)
賃 料 188,188円(税込)
共益費 -
敷 金 6ヶ月
償 却 -
ポイント:13坪・エステ居抜きの多用途物件! サロン開業・事務所利用どちらにも対応
13.16坪の無駄のない四角い間取りでサロン運営は勿論、
事務所としても使いやすいレイアウトが可能な実用性の高い空間です。
エステ居抜き物件のため、既存造作を活かして初期費用を抑えながら、
スムーズに開業・入居できる点が大きな魅力です。
さらに、貸室前面は広いガラス面となっており、外からの視認性が高く、
サロンでの集客は勿論、オフィスとしても明るく開放的な印象を与えられます。
美容系サロンの新規開業を検討されている方はもちろん、
コンパクトで使いやすいオフィスをお探しの方にもオススメの物件です。

■募集業種・業態
・ サービス店舗:美容系(エステ・ネイルサロン)、クリニック 等
・ 事務所、スクール
他フロアも募集中 (5階B)
面 積 24.78坪(81.95㎡)
賃 料 340,725円(税込)
共益費 -
敷 金 6ヶ月
償 却 -
【5階B物件概要】【B-15043】物件の詳細はこちら
アクセス
■東山線「藤が丘」駅:2番出入口から徒歩3分
フロアマップ・内装写真








建物周辺

お問合わせはこちら
ご質問、案内予約等ありましたらお気軽にご連絡ください。
その際【B16192】とお伝えください。
電 話:052-228-6770(9時~18時 定休日:土日祝日)
LINE:nikken公式アカウント(24時間受付)
メール:amiami annex 5階C号室 (24時間受付)
※LINE・メールでのお問合せの場合、営業時間外は受付のみとなっております