Blog日建ブログ
【B-16178】【美容系・その他・事務所】 名駅二丁目貸店舗 1階
2026.02.05#日建の推し
【中村区/東山線・桜通線・JR・名鉄/名駅エリア】駅徒歩圏内の好立地、1階店舗のご紹介です!
「名駅」は名古屋の玄関口と呼ばれ、JR・地下鉄・名鉄・近鉄が集まる中部地方最大級の交通ターミナルです。
再開発が進んだ駅周辺には、JRセントラルタワーズ、ミッドランドスクエア、JPタワー名古屋など200m級の超高層ビルが立ち並び、多くの人が行き交います。
駅直結のジェイアール名古屋タカシマヤ、タカシマヤゲートタワーモール、KITTE名古屋など大型商業施設が密集し、広大な地下街が張り巡らされているため、
雨の日でも快適に移動できる点も魅力で、ショッピングやグルメを楽しむ人々で賑わっています。
また、徒歩圏内には「ノリタケの森」や「トヨタ産業技術記念館」などの観光スポットも点在し、
ビジネス・観光・ショッピングが一体となった都市型エリアとして高い人気を誇ります。
昼はビジネス街として活気にあふれ、夜は飲食店やホテルを利用する人々で華やかな雰囲気に包まれる、名古屋を象徴するエリアです。
物件の特徴:落ち着いた環境と利便性が両立した人気エリアの好立地
本物件が位置する「名駅二丁目」は、「名古屋」駅から徒歩圏に在りながら、
喧騒から離れた落ち着いた雰囲気が魅力のエリアです。
利便性を享受しつつ、オフィスビルやマンションが調和した街並みが広がり、
都市生活と静けさのバランスが取れた住環境が整っています。
周辺には飲食店や生活利便施設も点在し、単身者から共働き世帯まで幅広い層に支持されています。
名古屋駅が徒歩圏内という立地は、通勤や出張が多い人にとって大きな魅力となっています。
名駅エリアの活気を身近に感じながらも、日常は落ち着いて過ごせる名駅二丁目は、
都市型ライフスタイルを求める人にとって理想的なロケーションです。
物件概要
所在地 名古屋市西区名駅二丁目8-15
階 数 1階
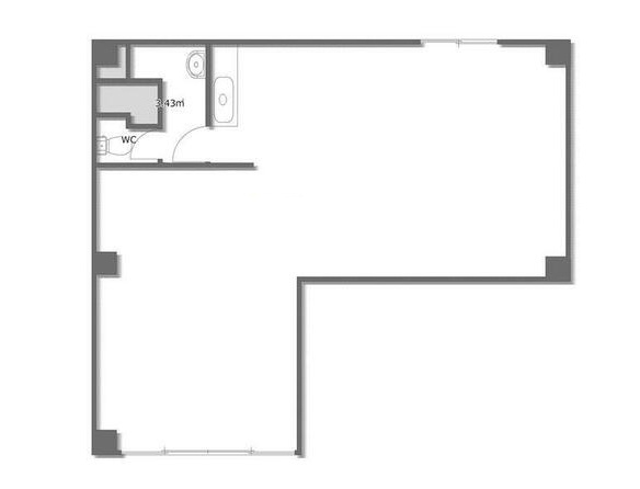
面 積 18.45坪(61.02㎡)
賃 料 286,000円(税込)
共益費 -
保証金 6ヶ月
償 却 3年未満100%、3年以上50%
ポイント:ペットトリミングサロンや24時間営業店舗も◎
名古屋駅から徒歩圏内という優れた立地に加え、視認性の高い1階路面店という希少性が魅力の店舗。
前面は大きなガラス面で構成されており、開放感があるだけでなく、通行人の目に留まりやすい外観です。
店舗面積18.45坪と、コンパクトながら効率的にレイアウトしやすいサイズ感。
初期投資を抑えつつ、名駅エリアでの出店を実現したい事業者にとって理想的な条件がそろっています。

■募集業種・業態
・トリミングサロン、24時間無人営業等
⇒トリミングサロンなら1階路面×広いガラス面で視認性が高く、ペットオーナーの目に留まりやすい立地。
18.45坪あり、受付・施術・バックヤード・物販など動線を確保しやすい。
⇒無人販売店ならガラス張りの路面店のため、商品が外から見えて興味を引きやすく安心感も演出。
食品系・ガチャ・古着・スイーツなど複数什器を置く業態に適した広さ。
・美容系サービス店舗(美容院、美容系サロン全般、接骨院)
⇒前面ガラスで初来店でも入りやすい雰囲気をつくれる物件。L字型の室内なので見せる場所、見せない場所等レイアウトしやすい。
・ 事務所利用
⇒名駅二丁目の利便性と1階路面の来客対応しやすい。近隣にコインパーキングが複数あるのも魅力。
18.45坪で会議室や応接スペースも確保可能。士業・スタートアップ・サテライトオフィスなど幅広く対応。
・飲食店⇒ドリンク販売の業態のみ要相談
アクセス
■東山線「名古屋」駅:1番出入口から徒歩7分
間取図・内装写真









建物周辺

※近隣にコインパーキングが複数あります
お問合わせはこちら
ご質問、案内予約等ありましたらお気軽にご連絡ください。
その際【B16178】とお伝えください。
電 話:052-228-6770(9時~18時 定休日:土日祝日)
LINE:nikken公式アカウント(24時間受付)
メール:名駅二丁目貸店舗 (24時間受付)
※LINE・メールでのお問合せの場合、営業時間外は受付のみとなっております