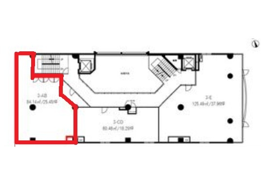
【B-15140】 【物販・美容サロン・事務所】 amiami annex 3階AB
2025.12.01#日建の推し
【名東区/東山線/藤が丘エリア】駅徒歩5分圏内の好立地、多業種が入居するテナントビルをご紹介!
名古屋市名東区の東端に位置する【藤が丘エリア】は、
「住みたい街ランキング」の常連として注目を集める人気の街です。
【アクセスの良さが魅力】
・地下鉄東山線で名古屋駅・栄まで直通30分以内
・駅前には市営・名鉄バスのターミナルがあり、路線も充実
・リニモの始発駅でもあり、長久手市やジブリパーク方面へのアクセスも抜群
【住環境と街の雰囲気】
・駅周辺は学生や通勤客で賑わい、飲食店も豊富
・少し離れると閑静な住宅街が広がり、落ち着いている
・スーパー・病院・塾など生活に必要な施設が揃い、子育て世代も安心
・治安が良く、ファミリー層や転勤族に支持されている
【コストパフォーマンスの高さ】
・名古屋駅周辺に比べて家賃が比較的安め
・都心の利便性と郊外の落ち着きを両立できる、コスパの高い街
「藤が丘」は、アクセスの良さ・生活利便性・治安の安心感を兼ね備えた街。
コストパフォーマンスも高く、バランスの取れた理想的なエリアです☝
物件の特徴:駅近×多彩なテナント×幅広い年齢層が利用
本物件「amiami annex」は、
「藤が丘駅」(東山線・リニモ:東部丘陵線)から徒歩5分圏内という便利な立地。
・多彩なテナントが集う活気あるビル
・館内にはフィットネスクラブ、学習塾、法律事務所等が入居中で、
幅広い利用者層に対応した環境
・個別空調を完備し、エレベーターも2基設置、
快適で利便性の高い施設

ポイント:視認性が高い貸室外観、OAフロアで初期費用を抑えられる☝
・ 視認性抜群のガラス面入口
⇒清潔感と開放感を演出し、来訪者に好印象を与えます。
・ OAフロアで初期費用を軽減
⇒コストを抑えつつ、快適なオフィス環境を整備可能。
・ 自由度の高いレイアウト設計
⇒ワークスタイルやチーム構成に合わせて柔軟に配置変更できます。

物件概要
所在地 名古屋市名東区明が丘124番地2号
階 数 3階AB
面 積 25.45坪(84.14㎡)
賃 料 349,937円(税込)
共益費 -
敷 金 6ヶ月
償 却 -
■募集業種・業態
・ 物販
・ 美容系:サロン、整体、クリニック等
・ 来店型事務所、オフィス
アクセス
■東山線「藤が丘」駅:2番出入口から徒歩3分
間取図・内装写真・建物周辺
間取図

内装写真




建物周辺

お問い合わせはこちら
ご質問、案内予約等ありましたらお気軽にご連絡ください。
その際【B15140】とお伝えください。
電 話:052-228-6770(9時~18時 定休日:土日祝日)
LINE:nikken公式アカウント(24時間受付)
メール:amiami annex(24時間受付)
※LINE・メールでのお問合せの場合、営業時間外は受付のみとなっております
