Blog日建ブログ
【B-16294】【物販・美容・事務所】東区泉2丁目メディカルビル 2階
2026.03.09居抜き物件特集
【東区/桜通線沿線/泉エリア】駅徒歩5分圏内、メディカルビルの居抜き物件です!
名古屋市東区の「泉」エリアは、落ち着いた住環境と都心の利便性が両立する人気の街です。
栄や久屋大通に隣接し、地下鉄「高岳」駅「久屋大通」駅からのアクセスも良好で、
おしゃれなカフェや個人店舗が点在し、散策も楽しめます。
オアシス21や愛知県美術館など文化施設にも近く、治安も良いことから、
幅広い層に選ばれる住みやすいエリアとして知られています。
物件の特徴:清潔感のある建物×落ち着いた雰囲気の駅近好立地!
本物件が位置する「泉二丁目」は、地下鉄「高岳」駅から近く、栄・久屋大通へも徒歩圏の利便性に優れた立地です。
周辺は住宅街とオフィスが混在しており、幅広い層の集客が期待できます。
建物は清潔感のある外観と医療向け設備を備え、各種クリニックの開業に適した環境が整っています。
1階には歯科クリニックが営業中です。
落ち着いた周辺環境から、美容皮膚科などの美容系クリニックにも対応しやすい物件です。

物件概要
所在地 名古屋市東区泉二丁目23番25号
階 数 2階
面 積 28.67坪(94.78㎡)
賃 料 409,981円(税込)
共益費 6,600円(税込)
保証金 6ヶ月
償 却 2年未満:100% 2年以降:30%
ポイント:クリニック居抜き内装で直ぐに開業可能! 美容系にもオススメな物件です!
今回ご紹介する区画は、28.67坪のクリニック居抜き物件です。
清潔感のある内装がそのまま残っているため、初期費用を抑えてスムーズに開業できる点が大きな魅力。
医療系クリニックは勿論、エステ・美容サロン・リラクゼーション・パーソナルジムなど、
美容・健康系の業態にも活用しやすいレイアウトとなっています。
メディカルビルの2階区画で、来院・来店動線も確保しやすく、幅広い業種におすすめできる物件です。

■ 募集業態・業種
・美容、健康系(エステ・サロン・リラクゼーション・パーソナルジム)
・クリニック
・事務所
他フロアも募集中 (3階・4階)
階 数 3階
面 積 28.67坪(94.78㎡)
賃 料 346,907円(税込)
共益費 6,600円(税込)
保証金 6ヶ月
償 却 2年未満:100% 2年以降:30%
【3階物件概要】【B-16295】物件の詳細はこちら
階 数 4階
面 積 27.96坪(92.46㎡)
賃 料 338,316円(税込)
共益費 6,600円(税込)
保証金 6ヶ月
償 却 2年未満:100% 2年以降:30%
【4階物件概要】【B-16296】物件の詳細はこちら
アクセス
■桜通線「高岳」駅:2番出入口から徒歩2分
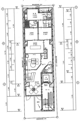
間取図・内装写真









建物周辺

お問い合わせはこちら
ご質問、案内予約等ありましたらお気軽にご連絡ください。
その際【B16294】とお伝えください。
電 話:052-228-6770(9時~18時 定休日:土日祝日)
LINE:nikken公式アカウント(24時間受付)
メール:東区泉2丁目メディカルビル (24時間受付)
※LINE・メールでのお問合せの場合、営業時間外は受付のみとなっております