【B-14871】 【物販・美容サロン・事務所】 SOLUX金山 2階2B
2025.12.17#日建の推し
【熱田区/名城線沿線/金山エリア】駅徒歩3分の好立地、視認性良好な物件をご紹介!
【金山エリア】は、交通の便が良いを超えた最強のポテンシャルをもつ駅です。
地下鉄名城線・名港線、JR中央線・東海道線、名鉄の5路線が乗り入れる総合駅です!
【通勤、通学に便利な総合駅が魅力】
・名古屋市内や春日井、知多三河方面と四方八方からアクセス可能
・通勤・通学途中なら通いやすい
【商業・グルメスポット】
・駅直結のショッピングモール 「アスナル金山」 は、アパレルから生活必需品まで揃う
イベントスペースではライブや公開放送も開催されます
・周辺には居酒屋やラーメン店など飲食店が充実
・深夜営業のスーパーやイオンがあり、生活利便性が高い
物件の特徴:駅近×高い視認性×築浅のテナントビル!
本物件「SOLUX金山」は、地下鉄名城線「金山駅」から徒歩3分という好立地。
スタッフの人材確保も最強の味方に!
・大津通沿い「金山橋南」交差点の角地にあり、高い視認性を誇るテナントビル
・2024年11月竣工で新耐震基準に対応、エレベーターは2基を備え、24時間利用可能な快適な施設環境
・オフィスが中心ですが、低層階(1〜3階)は飲食店や商業テナントが入居中

ポイント:120㎡超のスケルトン物件! 美容室・クリニック等にオススメ!
・約123㎡の広々とした空間を備えたスケルトンとなっています。
・美容系店舗なら自由なレイアウト設計で、サロンやエステの雰囲気を思い通りに演出可能です。
・物販系なら広い間取りを活かし、商品展示やショールーム展開に最適。
物件概要
所在地 名古屋市熱田区金山町二丁目1番1号
階 数 2階2B
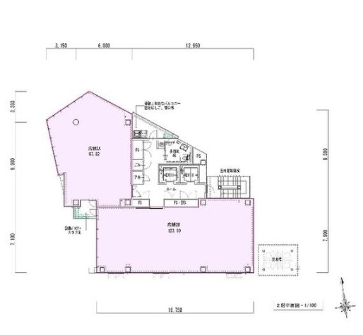
面 積 37.24坪(123.1㎡)
賃 料 634,772円(税込)
共益費 81,906円(税込)
保証金 10ヶ月
償 却 2.2ヶ月(税込)
■ 募集業種・業態
・物販
・美容系等のサービス店舗
・クリニック
・事務所
※ 【B-14872】3階3A号室も募集中です。
階 数 3階3A
面 積 25.01坪(82.68㎡)
賃 料 440,176円(税込)
共益費 55,022円(税込)
保証金 10ヶ月
償 却 2.2ヶ月(税込)
アクセス
■ 名城線「金山」駅:3番出入口から徒歩3分
間取図・内装写真・建物周辺
間取図

内装写真

↑ 貸室入口



共用部・エントランス等

↑ 共用トイレ


建物周辺

お問合わせはこちら
ご質問、案内予約等ありましたらお気軽にご連絡ください。
その際【B14871】とお伝えください。
電 話:052-228-6770(9時~18時 定休日:土日祝日)
LINE:nikken公式アカウント(24時間受付)
メール:SOLUX金山(24時間受付)
※LINE・メールでのお問合せの場合、営業時間外は受付のみとなっております
