【B-16004】 【物販・美容サロン・事務所】 今池エフワンビル 1階
2025.12.22#日建の推し
【千種区/東山線・桜通線沿線/今池エリア】 駅徒歩1分の好立地、視認性の高いテナントビルのご紹介です!
名古屋市千種区に位置する【今池エリア】は、アクセスの良さもありながら、
「庶民的な繁華街」と「カルチャーの発信地」が共存する、集客力の高い街です。
グルメ・音楽・映画・神社など多彩な魅力があり、幅広い層の来街者を惹きつけています。
①アクセスの利便性
・地下鉄東山線・桜通線「今池駅」直結 → 名古屋駅・栄・千種から乗り換えなし
・バス路線充実 →市内各方面からのアクセスが良好で、 昼夜問わず安定した人流
・車アクセスも良好 → 駐車場・コインパーキング多数
⇒ 交通利便性が高く、地元住民・学生・観光客まで幅広い層が集まるエリアです。
②カルチャー・エンタメ
・日本最古級ミニシアター「名古屋シネマテーク」
・ライブハウス(ボトムライン、今池ガスホールなど)
⇒ 映画・音楽ファンを惹きつける文化発信地 → 飲食・物販との相乗効果大
③グルメ
・台湾ラーメン発祥「味仙 今池本店」
・庶民的な居酒屋・焼肉・中華料理店多数
⇒ 飲食需要が非常に高く、幅広い業態が受け入れられる
④癒し・歴史
・保護猫カフェ「ヘミングウェイ」
・すいどうみち緑道 → 散歩・リフレッシュ
・高牟神社 → 恋愛成就・長寿の霊水
・揚輝荘(覚王山) → 歴史的建築と庭園
⇒ 散策需要もあり、昼夜問わず安定した人流
「今池」は “飲んで食べて楽しむ街” でありながら、映画や音楽など文化的な側面もある名古屋のディープスポット。
繁華街としての集客力とカルチャー発信地としての魅力を兼ね備えた、飲食店・物販店・サービス業など幅広い業態に適した立地です☝
物件の特徴:駅近×角地×視認性の高さが強みのテナントビル!
本物件「今池エフワンビル」は、
「今池駅」(東山線・桜通線)から徒歩1分という便利な立地。
・駅近で集客力が高い
・1フロア1テナントで気兼ねなく、プライバシーも確保
・設備は個別空調やトイレ(男女別)があり、エレベーター1基設置、
2025年10月に室内フルリノベーション済みなので、
引き渡し後即営業・開業が可能で嬉しい♪
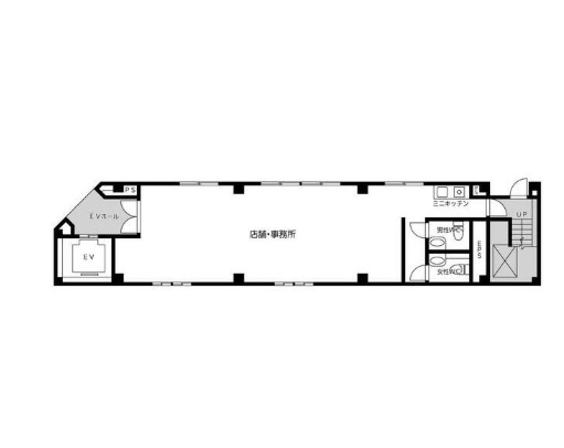
ポイント:約20坪、縦長レイアウトで美容系サービスに最適!
・1階なので、整体・接骨院の開業におすすめ!
・エステ・ネイル・アイラッシュなど美容系店舗にも◎
・約20坪で初出店や新規展開にも安心のサイズ感!
【集客力と利便性を兼ね備えた、魅力的な店舗スペースです】

物件概要
所在地 名古屋市千種区今池四丁目8番1号
階 数 1階
面 積 20.48坪(67.7㎡)
賃 料 292,864円(税込)
共益費 -
保証金 8ヶ月
償 却 -
■募集業種・業態
・ 物販
・ サービス店舗:美容系(サロン、整体)、クリニック、スクール
・ 来店型事務所、オフィス
他フロアも募集中 (2階・3階・4階)
面 積 22坪(72.72㎡)
賃 料 266,200円(税込)
共益費 -
保証金 8ヶ月
償 却 -
【2階物件概要】【B-16103】物件の詳細はこちら
【3階物件概要】【B-16104】物件の詳細はこちら ※OAフロア
【4階物件概要】【B-16105】物件の詳細はこちら
アクセス
■ 東山線/桜通線「今池」駅:2番出入口から徒歩1分
間取図・内装写真・建物周辺
間取図

内装写真

↑ 貸室入口






エントランス・テナントサイン


建物周辺

お問合せはこちら
ご質問、案内予約等ありましたらお気軽にご連絡ください。
その際【B16004】とお伝えください。
電 話:052-228-6770(9時~18時 定休日:土日祝日)
LINE:nikken公式アカウント(24時間受付)
メール:今池エフワンビル(24時間受付)
※LINE・メールでのお問合せの場合、営業時間外は受付のみとなっております
